Terreno en VENTA, Pedregal de Schoenstatt, Corregidora, Queretaro. Con proyecto aprobado
$ 900,000 MXN | 114 m2
Características principales

Otras características
- Seguridad
Descripción
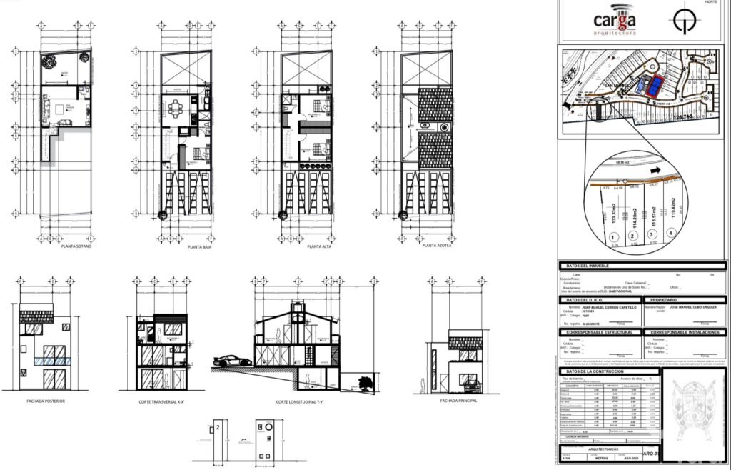
Ref: NEX-259112¡Oportunidad única! Terreno en Venta en Pedregal de Schoenstatt, Corregidora, Querétaro. Este terreno cuenta con una superficie de 113 m2 y tiene un uso de suelo residencial, perfecto para construir la casa de tus sueños. Ubicado en una de las zonas más exclusivas de la ciudad, este terreno ofrece la tranquilidad y seguridad que buscas para ti y tu familia.
Tenemos ya un proyecto de construcción aprobado para una casa de 3 recámaras y una de ellas en PB. Es decir, puedes comprar solo el terreno, o terreno con planos o ya la casa con llave en mano, tú eliges.
Pedregal de Schoenstatt se caracteriza por ser una zona residencial con amplias áreas verdes y excelentes servicios. La zona cuenta con escuelas de prestigio y hospitales de primer nivel, garantizando la comodidad y bienestar de sus residentes.
Con fácil acceso desde la Carretera Querétaro-México, este terreno se encuentra en una ubicación privilegiada que te permitirá desplazarte de manera rápida y segura a cualquier parte de la ciudad. Aprovecha esta oportunidad para adquirir un terreno en una de las zonas más exclusivas de Querétaro y construir la vida que siempre has soñado. ¡Contáctanos para más información!
Ubicación
Vial 7 2089, Pedregal de Schoenstatt, 76904 Corregidora, Qro., México
La ubicación que se muestra en el mapa es aproximada. Para la dirección exacta comunícate con el anunciante.
Propiedades similares
  Corregidora  
$ 1,735,235
  Corregidora  
$ 770,550
  Corregidora  
$ 773,630
  Corregidora  
$ 1,750,000




